Kleinkläranlagen-info.de


Direkt zum Seiteninhalt

Dichtigkeit

Ausführung


Bauausführung


Durchführen der Dichtigkeitsprüfung


Jede Kläranlage muss vor der Inbetriebnahme auf ihre Dichtigkeit nach DIN EN 1610 hin überprüft werden. Eine Kläranlage gilt als wasserdicht, wenn nach einer Standzeit des Wassers von 24 Stunden, der Wasserverlust innerhalb einer Messzeit von 2 Stunden 0,1 l/m² benetzter Innenfläche der Außenwände nicht überschreitet.
Gleichwertige Prüfverfahren sind unter umständen zulässig.


Durchführung

1. Zulauf mit Absperrblase oder Absperrscheibe verschliessen.

2. auf den Ablaufstutzen 90°-Bogen stecken

3.
Zur Prüfung der Anlage muss diese bis zum Überlaufen über den aufgesteckten Bogen am Ablauf mit Wasser gefüllt werden. siehe Abbildung
Es empfiehlt sich hierfür Regenwasser
zu verwenden, um nicht wertvolles Trinkwasser zu verschwenden. Die Entnahme aus Oberflächengewässern nur mit Genehmigung der Wasserbehörde - ohne, kann das sehr teuer werden.

4. Bis Sättigung des Betons sollte mindestens 24 Stunden gewarten werden, gegebenenfalls vorsichtig, ohne Wellen Wasser bis zum überlaufen nachzufüllen. Wenn nichts mehr überläuft weiter mit Punkt 5.

5.
Wasserstand mit einer Genauigkeit von 1,00 mm messen. Und Ergebnis H1 notieren. Ab jetzt kein Wasser mehr nachfüllen.
- Beginn der Prüfzeit

6. Nach 120 Minuten.
- Ende der Prüfzeit

7. Jetzt mit einem Meßbecher soviel Wasser vorsichtig nachgießen bis es fast überläuft. Die dafür verbrauchte Wassermenge V notieren.

8. Berechnung des maximal zulässigen Wasserverlustes.

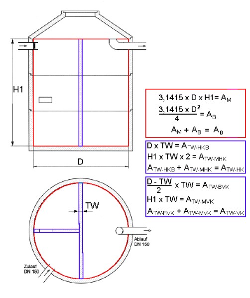
Zur Berechnung der benetzen Behälterinnenfläche müssen Sie je nach Behältertyp verschiedene Lösungswege wählen.

Die Berechnung des Grundkörpers ist bei allen Beton-Behältervarianten gleich
(siehe Abbildung - roter Kasten). Das Ergebnis A0 notieren

Nun müssen, wenn vorhanden, die Trennwandflächen welche die Außenwand abdecken abgezogen werden
(siehe Abbildung - blaue Kästen). Das Ergebnis Ages notieren.

z.B.:
- für Behälter ohne Trennwände => nur roter Kasten (
A0) = benetze Behälterinnenfläche (Ages)

- für Behälter mit zwei Halbkammern => roter Kasten (
A0) "minus" mittlerer blauer Kasten (ATW-HK) = benetze Behälterinnenfläche (Ages)

- für Behälter mit zwei Viertelkammern => roter Kasten (
A0) "minus" mittlerer blauer Kasten (ATW-HK) "minus" unterer blauer Kasten (ATW-VK) = benetze Behälterinnenfläche (Ages)

Wichtig! Das Ergebnis sollte in m², ansonsten bitte umrechnen!

Nun das so ermittelte Ergebnis mit 0,1 Liter "multiplizieren".

Das Ergebnis sollte nun
größer als die tatsächlich verbrauchte Wassermenge V sein. Sollte dies der Fall sein, haben sie die Dichtigkeit Ihres Behälters nachgewiesen. Tragen sie die ermittelten Ergebnisse in das Protokoll ein - fertig.

=> Und jetzt kann die Baugrube wieder verfüllt werden



Sollte das Ergebnis kleiner
als die tatsächlich verbrauchte Wassermenge V sein und Sie haben meine Ratschläge (Verfüllen) bisher beherzigt dürfe es kein Problem sein die undichte Stelle zufinden - einfach äußere Wand auf Wasseraustritt kontrollieren und Fugen bzw. Rohrdurchführungen nachbessern.
Wasseraustritt an anderen Flächen sind auf Betonfehler zurückzuführen diese sollten Sie bei Hersteller reklamieren.


L&J Kraschewski GbR - letzte Aktualisierung am 15 Dez 2010

Zurück zum Seiteninhalt | Zurück zum Hauptmenü